Адрес: Находка, улица Верхне-Морская
Описание
Продажа, Дом в черте города, район Рыбный порт
ул. Верхне-Морская, дом 78А
2 этажа
Общая площадь 156,5 кв.м
Год постройки - 2011
Дом сухой и теплый.
Конструктивные решения: Стены - красный кирпич. Утеплен минватой 100 мм, в цокольной части утепление 150 мм. Отделка - фасадные панели Ханьи. Фундамент - колонны, фундаментные блоки ФС 40. Кровля - черепица Ондулин.
Центральные коммуникации: Электричество 15кВт - 220 вольт
Автономные коммуникации: Твердотопливный котел + Электро- котел., 4 контура отопления. В сан узлах теплые полы. Вода - Скважина 40 метров, в подвале установлены 2 бака - гидрофора объемом по 200 лит., Канализация - Септик на 4 кольца (объем 4 куба)
Участок огорожен сетчатым забором, лицевая часть участка огорожена профнастилом. Откатные ворота с автоматикой.
Установлена система видеонаблюдения участка.
Уютный Добротный двухэтажный дом. Расположен в черте города, район Рыбного порта. Хороший подъезд к дому. Соседние дома расположены не ближе 100 метров.
Развитая инфраструктура района. В шаговой доступности: Школа-Гимназия №1, два Детских садика, Муниципальный Дом творчества, Городской парк, Спорткомплекс "Спартак", Продуктовые и хозяйственные магазины, Банки, Почта, Поликлиника, Автобусная остановка (в 10 мин ходьбы).
При продаже, остается вся мебель и техника.
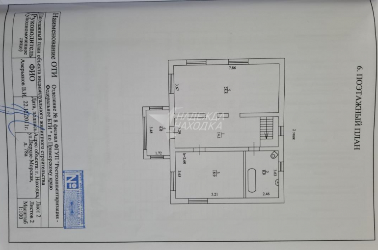
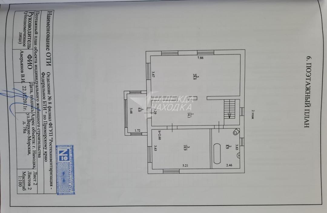
Планировка дома:
Два входа: парадный и дополнительный.
1 этаж: Веранда 5,9м, Прихожая 18,0м, Гостиная 28,7м, Кухня 18,8м, бойлерная
2 этаж: 3 отдельные комнаты (18,9м, 14,8, 14,0) коридор 14,1 м, с выходом на балкон 5,9м,
В доме два сан узла, на 1м и на 2м этаже с теплыми полами.
Просторный электрифицированный подвал.
На территории расположены: подсобное помещение 25м., два 20-футовые контейнера. Есть место под парковку автомобиля.
Участок спланирован по зонам: декоративные клумбы под цветы; небольшой огород; сад с плодоносящими деревьями и кустарниками (персик, абрикос, груша, яблони, вишня, слива, малина, смородина, крыжовник, лимонник, жимолость), как украшение - сортовая рябина, боярышник, шиповник. Весь Сад молодой.
Земельный Участок 15 соток, в Собственности.
Категория земель: земли населенных пунктов
Виды разрешенного использования: отдельно стоящие односемейные дома с земельными участками без содержания домашнего скота.
| Сведения о недвижимости | |
|---|---|
| ID | 6351 |
| Тип комнат | Изолированные |
| Комнат в доме | 4 |
| Категория земли | ИЖС |
| Тип строения | Дом |
| Площадь, кв.м. | 156.5 |
| Площадь участка, сот | 15.27 |
| Этажность | 2 |
| Материал стен | Кирпич |
| Отопление | Электро |
| Стоимость | 10 500 000 |
28 Января, 2021
Цена: 10 500 000 р.




































